Espace propriétaire
Exclusivité
Massy (91300)

3 pièces - 58 m²

T3 MASSY

330 000 €
Ref : VAP170002343
Découvrir le bien

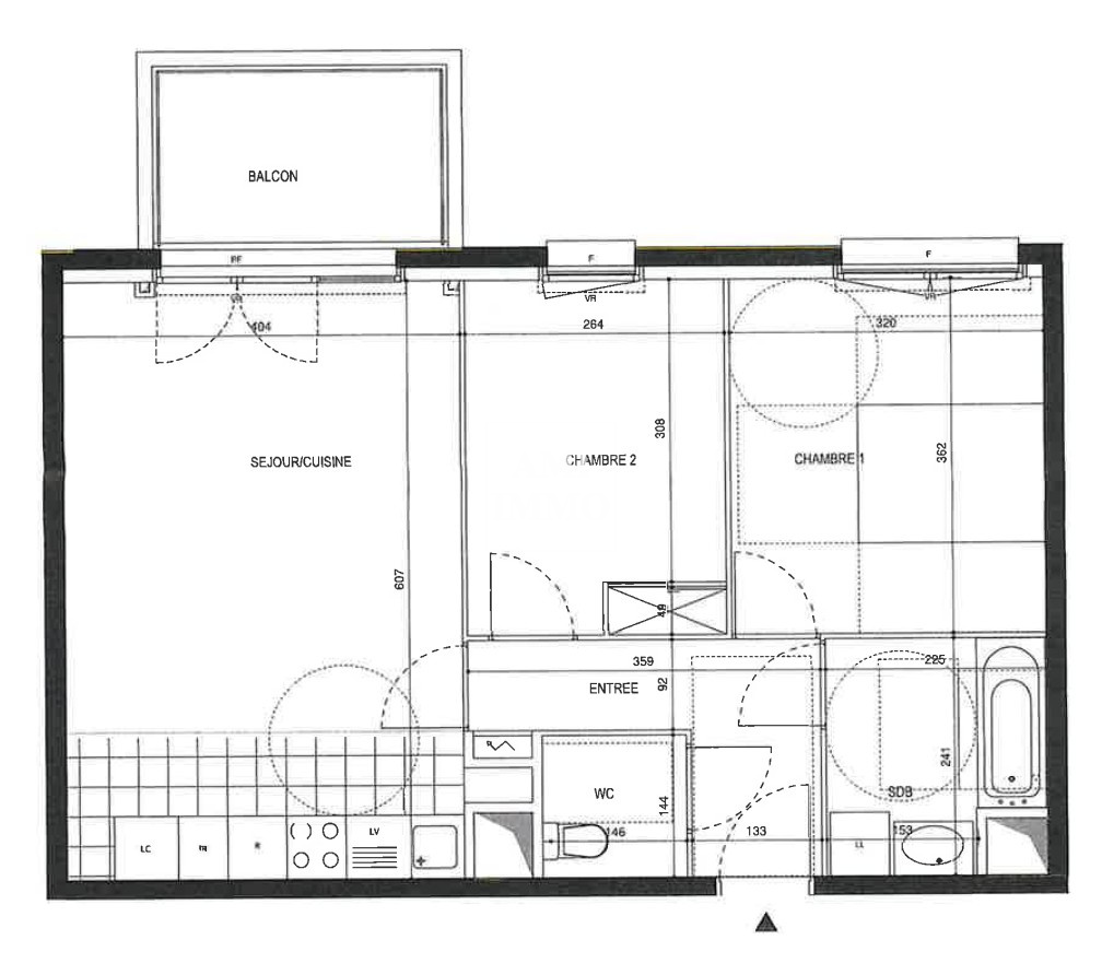
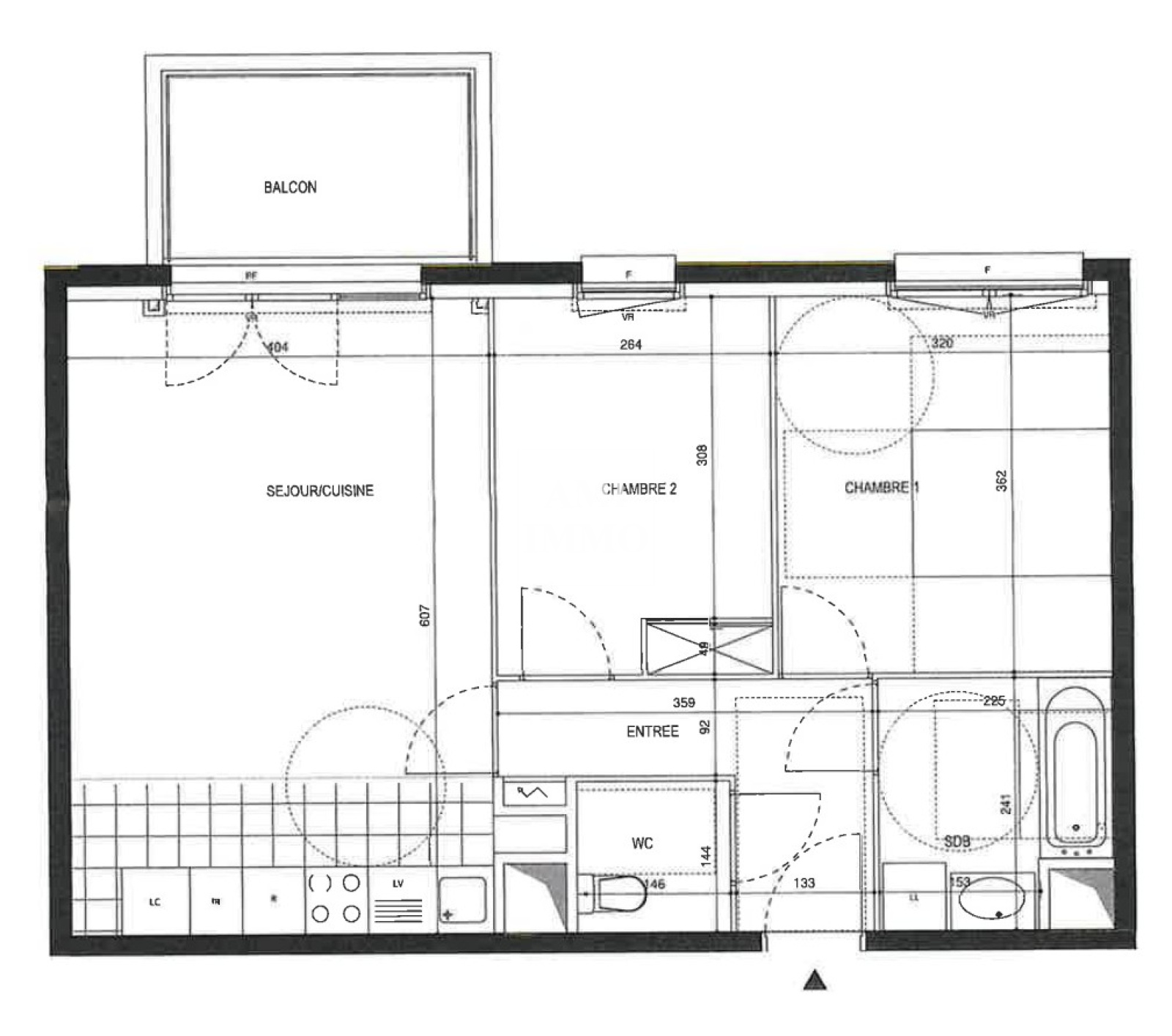
MASSY RESIDENCE ATLANTIS - Appartement 3 pièces de 58 m² avec balcon et parking

Votre agence AMI IMMOBILIER vous présente ce bel appartement de 3 pièces, situé dans une résidence sécurisée de 2021, à quelques pas des supermarchés, proche des écoles maternelle et élémentaire, à deux pas du futur métro 18 et enfin à environ 10 min de la gare de Massy-Palaiseau (RER B, RER C et TGV).

Il comprend une entrée, un séjour avec cuisine ouverte, deux chambres, une salle de bains et un WC séparé. Le séjour donne accès à un balcon de 5,5 m².

Une place de parking privative complète le bien.

Bien adapté pour une résidence principale ou un investissement locatif dans un secteur bien desservi.

Pour toute demande de renseignements et prise de RDV, contactez Milan MARCHAND - 06 45 97 82 55.


Les informations sur les risques auxquels ce bien est exposé sont disponibles sur le site Géorisques
TRAD_ZEPHYR_Caracteristique TRAD_ZEPHYR_Valeurs
Code postal 91300
Surface loi Carrez (m²) 58 m²
Nombre de chambre(s) 2
Nombre de pièces 3
Etage 4
Ascenseur OUI
TRAD_ZEPHYR_Caracteristique TRAD_ZEPHYR_Valeurs
Nb de salle de bains 1
Cuisine Américaine
Mode de chauffage Autre
Type de chauffage Radiateur
Format de chauffage Collectif
Balcon OUI
Exposition Nord-Ouest
Année de construction 2021
TRAD_ZEPHYR_Caracteristique TRAD_ZEPHYR_Valeurs
Copropriété OUI
nombre de lots 506
Quote Part annuelle des charges 1 956 €
plan de sauvegarde NON
statut du syndic procédure en cours
TRAD_ZEPHYR_Caracteristique TRAD_ZEPHYR_Valeurs
Prix de vente 330 000 €
Les honoraires d'agence seront intégralement à la charge du vendeur  
Charges 163 €
Taxe foncière annuelle 708 €
Rez de chaussée
entrée 5.4 m²

salon/sejour 24.7 m²

chambre 11.6 m²

chambre 9.5 m²

chambre 4.9 m²

DPE GES
  • Commerces et santé
  • Loisirs
  • Ecoles
  • Transports
  • Pratique
Contacter pour ce bien
L'agence
Téléphone +33142538888
Adresse
164 Avenue de Paris 92320 Châtillon

* Champ obligatoire

Les informations recueillies sur ce formulaire sont enregistrées dans un fichier informatisé par La Boite Immo agissant comme Sous-traitant du traitement pour la gestion de la clientèle/prospects de l'Agence / du Réseau qui reste Responsable du Traitement de vos Données personnelles. La base légale du traitement repose sur l'intérêt légitime de l'Agence / du Réseau. Elles sont conservées jusqu'à demande de suppression et sont destinées à l'Agence / au Réseau. Conformément à la loi « informatique et libertés », vous disposez des droits d’accès, de rectification, d’effacement, d’opposition, de limitation et de portabilité de vos données. Vous pouvez retirer votre consentement à tout moment en contactant directement l’Agence / Le Réseau. Consultez le site https://cnil.fr/fr pour plus d’informations sur vos droits. Si vous estimez, après avoir contacté l'Agence / le Réseau, que vos droits « Informatique et Libertés » ne sont pas respectés, vous pouvez adresser une réclamation à la CNIL. Nous vous informons de l’existence de la liste d'opposition au démarchage téléphonique « Bloctel », sur laquelle vous pouvez vous inscrire ici : https://www.bloctel.gouv.fr Dans le cadre de la protection des Données personnelles, nous vous invitons à ne pas inscrire de Données sensibles dans le champ de saisie libre.
Ce site est protégé par reCAPTCHA, les Politiques de Confidentialité et les Conditions d'Utilisation de Google s'appliquent.

Découvrir nos outils